• Home
  • Reference
  • Služby
  • O společnosti
  • Kontakty
  • Home
    • Stavby pro bydlení
      • Rodinné domy
      • Ostatní stavby
    • Služby
    • O společnosti
    • Kontakty

Bydlení za nemocnicí

Místo stavby:

Boskovice

Typ stavby:

Bytový dům

Autoři:

Petr Němec
Ladislav Müller

Obestavěný prostor:

109 980 m3

Zastavěná plocha:

5 821 m2

Popis projektu:

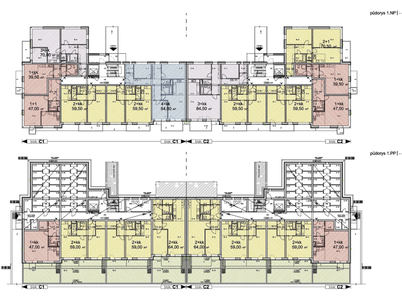
Jedná se o kompletní návrh nového sídlištního útvaru v okrajové části města Boskovic. Na parcelách za areálem nemocnice je navrženo celkem 7 bytových bloků a menší občanská vybavenost. Celkem je zde navrženo 360 bytových jednotek s odhadovaným počtem 896 obyvatel. Domy jsou navrženy se čtyřmi typickými podlažími a jedním „podzemním“ podlažím, na které navazují bytové zahrádky na terénu. Domy jsou zastřešeny pultovou střechou nad ustupujícím posledním podlažím. Přes vikýře jsou zde přístupné střešní bytové terasy. Hlavní fasády všech domů jsou navrženy v odstínu bílé, poznávacím znamením domů jsou barevné akcenty prvků fasády a balkónových „lízátek“ v barvě typické pro každý jeden dům. K sídlišti je navržena rovněž parková úprava v podobě dětských hřišť a uličního mobiliáře.

 
 
 
Copyright (C) Archlive.cz
Contimex.cz